對于更大的供水需求(如市政、電廠或工業生產用水等),普通的多路閥系統已難以達到要求,單純采用多臺設備并聯運行會增加占地、基建和設備投資。本公司采用美國Osmonics/Autotrol、Aquamatic、FLECK等公司的先進技術及原廠部件設計了ZK系列大流量軟化水系統,其單罐產水量自30~170t/h,系統總產水量可達1500t/h以上。此類系統可以采取模塊化方式組合,對于更大水量的需求,僅通過簡單的組合即可達到。
集成閥系統采用Autotrol、Fleck公司的大口徑集成多路閥,并在必要時配合旁通管及輔助吸鹽器,進出水口徑2.5-3",配用樹脂罐直徑1200~1500mm,單罐產水量比較大可達55~60t/h,系統產水量30~150t/h。
目前大型系統已經實現逆流再生,系統設計及成本均沒有特別的變化。
1、ZK系列大型軟化水系統規格表
|
型號 |
處理量 |
罐徑 |
樹脂 |
鹽耗 |
外形尺寸(m) |
運行方式 |
|
ZK-35T |
30-40 |
Ф1200 |
1500 |
198 |
3.0×2.0×2.8 |
單罐時間控制含鹽閥及再生無硬水裝置 |
|
ZK-50T |
40-55 |
Ф1500 |
2150 |
267 |
3.7×2.4×2.8 |
|
|
ZK-35Q |
30-40 |
Ф1200 |
1500 |
198 |
3.0×2.0×2.8 |
單罐流量控制剩余水量、瞬時流量顯示 |
|
ZK-50Q |
40-55 |
Ф1500 |
2150 |
267 |
3.7×2.4×2.8 |
|
|
ZK-35D2 |
30-40 |
Ф1200 |
3000 |
398 |
4.5×2.0×2.8 |
雙罐一用一備,自動切換剩余水量、瞬時流量顯示 |
|
ZK-50D2 |
40-55 |
Ф1500 |
4250 |
534 |
5.8×2.4×2.8 |
|
|
ZK-35E2 |
60-80 |
Ф1200 |
3000 |
398 |
4.5×2.0×2.8 |
雙罐同時運行,自動切換剩余水量、瞬時流量顯示 |
|
ZK-50E2 |
80-110 |
Ф1400 |
4250 |
534 |
5.8×2.4×2.8 |
|
|
ZK-35D3 |
60-80 |
Ф1200 |
4500 |
597 |
7.0×2.4×2.8 |
三罐兩用一備,自動切換剩余水量、瞬時流量顯示 |
|
ZK-50D3 |
80-110 |
Ф1500 |
6375 |
800 |
10×2.4×2.8 |
|
|
ZK-35E3 |
90-110 |
Ф1200 |
4500 |
597 |
7.0×2.4×2.8 |
三罐同時運行,自動切換剩余水量、瞬時流量顯示 |
|
ZK-50E3 |
110-150 |
Ф1500 |
6375 |
800 |
10×2.4×2.8 |
2、ZK系列集成閥式大型單罐軟化水系統

3、ZK系列集成閥式大型單罐軟化水系統安裝尺寸表(mm)
|
項 目 |
Φ1 |
Φ1' |
Φ2 |
Φ3 |
Φ4 |
Φ5 |
Φ6 |
H |
H1 |
H2 |
H3 |
S1 |
S3 |
|
ZK-35T/Q |
1200 |
1400 |
Dg80 |
Dg80 |
Dg80 |
Dg50 |
Dg20 |
2400 |
1200 |
1500 |
1100 |
1600 |
450 |
|
ZK-50T/Q |
1500 |
1800 |
Dg80 |
Dg80 |
Dg80 |
Dg50 |
Dg25 |
2400 |
1200 |
1500 |
1100 |
2100 |
450 |
注:1.隨技術改進及用戶需要,圖中部分管路可能略有變化。
2.虛線內部件用戶自備。
4、ZK系列大型雙罐軟化水系統

5、ZK系列大型雙罐軟化水系統安裝尺寸表 (mm)
|
項 目 |
Φ1 |
Φ1' |
Φ2 |
Φ3 |
Φ4 |
Φ5 |
Φ6 |
Φ7 |
H1 |
H2 |
H3 |
S1 |
S2 |
S3 |
|
ZK-35D2/E2 |
1200 |
1500 |
65 |
80 |
80 |
40 |
25 |
40 |
2600 |
1500 |
1000 |
1700 |
1250 |
300 |
|
ZK-50D2/E2 |
1500 |
1800 |
80 |
100 |
100 |
40 |
40 |
50 |
2800 |
1500 |
1000 |
1900 |
1400 |
400 |
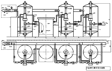
6、ZK系列集成閥式大型軟化水系統(三罐)

7、ZK系列集成閥式大型軟化水系統(三罐)安裝尺寸表 (mm)
|
項 目 |
Φ1 |
Φ1' |
Φ2 |
Φ3 |
Φ4 |
Φ5 |
Φ6 |
H1 |
H2 |
H3 |
H4 |
S1 |
S2 |
S3 |
S4 |
|
ZK-35D3/E3 |
1200 |
1800 |
100 |
100 |
80 |
40 |
40 |
2600 |
1900 |
1000 |
1500 |
1900 |
450 |
1250 |
1800 |
|
ZK-50D3/E3 |
1500 |
2200 |
159 |
159 |
80 |
40 |
40 |
2800 |
1900 |
1000 |
1500 |
2200 |
450 |
1400 |
2100 |
|
二、 |
大型分立閥系統 |
主要采用美國Aquamatic公司的多段分配器和控制器為核心部件,控制多個隔膜閥全自動運行,配用罐體比較大直徑可達3000mm,進出水管徑達6"以上,單罐產水量達110~170m3/h,系統產水量比較大可達1500m3/h以上。
采用多個分離的隔膜閥使整個系統更容易調節,工作過程中各控制步驟均清晰可見,更適合工業生產等大流量用水需求;由于控制系統在設計時預留有標準通訊接口,可以實現多罐同時運行、多用一備(可以有10個罐體并聯,多用一備或多用多備運行,工作狀態自動切換)。也可以組成多級串聯系統,以在進水硬度很高時達到較好的出水水質。
產品采用金屬管道、ABS或PVC材質。配用罐體主要有國產玻璃鋼、國產不銹鋼、碳鋼和進口玻璃鋼幾種材質,可以適應各種不同的進水水質和用水需要。
|
型 號 |
處理量 (t/h) |
罐徑 (mm) |
管徑 (mm) |
樹脂量 (T) |
|
GQ-40 |
35-40 |
Ф1500 |
80 |
1.84 |
|
GQ-50 |
45-53 |
Ф1600 |
100 |
2.24 |
|
GQ-60 |
55-64 |
Ф1800 |
100 |
2.67 |
|
GQ-70 |
65-75 |
Ф2000 |
125 |
3.14 |
|
GQ-100 |
75-100 |
Ф2300 |
150 |
4.16 |
|
GQ-120 |
100-128 |
Ф2600 |
150 |
5.35 |
|
GQ-150 |
130-150 |
Ф2800 |
200 |
6.50 |
|
GQ-170 |
150-177 |
Ф3000 |
200 |
7.36 |
2、GQ系列全自動軟化水系統示意圖






